Simona

Parametry projektu
Cena 7 850 000 Kč
Cena domu na klíč
Cena projektu:
48 900 Kč
Typ domu:
Samostatně stojící
Konstrukce:
Zděné domy
Obytných místností:
6 + kk
Nadzemních podlaží:
Bungalovy
Garáž:
S garáží
Popis projektu
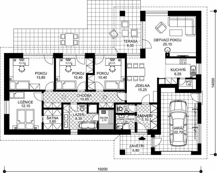
Simona je přízemní rodinný dům větší velikostní kategorie půdorysného tvaru písmene ”T” se sedlovou střechou o sklonu 25°. Dům není podsklepen. Součástí domu je vestavěná garáž s prostorem pro uložení jízdních kol a zahradního nářadí. Vstup do domu je přes závětří do prostorného zádveří. Ze závětří je rovněž vstup dveřmi do garáže. Ze zádveří je přístupná místnost na domácí práce a WC. Denní část domu tvoří jídelna s navazujícím obývacím pokojem a kuchyní se spíží. Z jídelny je přístupná klidová zóna domu tvořená chodbou, třemi pokoji, ložnicí se šatnou a lázní se saunou.Z obývacího pokoje je přístupná částečně zakrytá terasa. Rovněž z pokojů je přímý vstup na terasu a do zahrady. Dům je možné umístit na rovinatém, nebo mírně svažitém pozemku. Předpokládá se orientace hlavního hřebene domu ve směru severovýchod-jihozápad. Dům je vhodné orientovat na parcele tak, aby hlavní hřeben střechy domu byl kolmo na osu přístupové komunikace. Obytné místnosti 6+1 Užitná plocha 127,65 m² Obytná plocha 76,6 m² Zastavěná plocha 199,87 m² Obestavěný prostor 995 m³ Výška hřebene 5 m Přístup k domu od SV,V,S
Kontaktní informace
















