Rodinný dům 05

Parametry projektu
Cena 4 817 000 Kč
Cena domu na klíč
Cena hrubé stavby:
2 686 000 Kč
Typ domu:
Samostatně stojící
Konstrukce:
Montované domy
Obytných místností:
5 + kk
Nadzemních podlaží:
Bungalovy
Garáž:
Bez garáže
Popis projektu
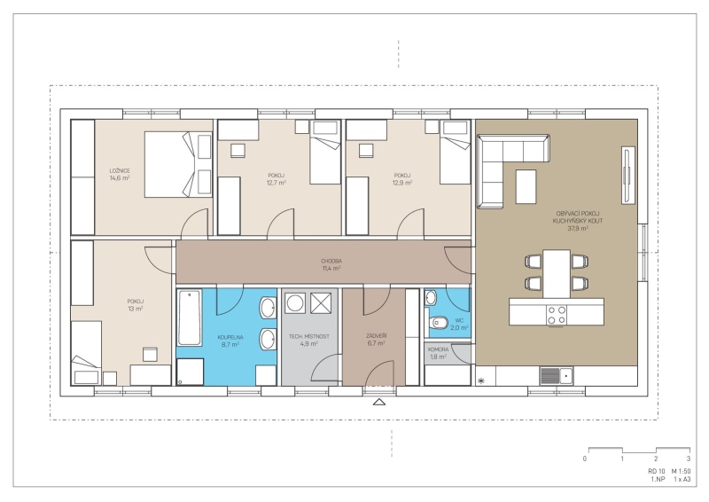
Počet místností 5+kk
Rozměr domu 8,50 x 17,40 m
Zastavěná plocha 147 m²
Užitná plocha 126 m²
Dům je ideálním řešením pro rodiny s více dětmi nebo pokud potřebujete samostatnou pracovnu či hostinský pokoj. To vše vám náš bungalov nabízí. Je zde oddělena klidová část domu s ložnicí a pokoji od části s technickým a sociálním zázemím, kterému dominuje prostorná koupelna, technická místnost a samostatné WC. Do domu se vchází přes zádveří, v kterém pohodlně umístíte botník i skříň na svršky oděvu. A velmi podstatnou částí domu, kde se potkává celá rodina, je prostorný obývací pokoj s jídelním a kuchyňským koutem, který je doplněn místností spíže.
Kontaktní informace

















