Dřevostavby na klíč - kvalita na prvním místě
Pokud uvažujete o montované dřevostavbě, vybírejte dodavatele podle použitých technologií. Nejvyšší technický standard a přesnost zpracování nabízejí domy montované z prefabrikátů, které se vyrábějí z kvalitních materiálů a při dodržování technologických postupů ve výrobních halách.
Dřevostavby jsou stále oblíbenějších způsobem výstavby a oproti zděným domům a dalším alternativám mají řadu výhod. Při výběru dodavatele ale buďte obezřetní. I mezi dřevostavbami existují rozdíly a konkrétní postup výstavby může vypadat různě, od kompletní realizace na staveništi až po velmi přesnou výrobu jednotlivých stěn včetně oken a dveří ve výrobních halách. Pokud chcete dřevostavbu ve vysokém standardu s použitím kvalitních materiálů a chcete mít jistotu, že při výrobě byl dodržen správný technologický postup, vsaďte na dřevostavbu z prefabrikátů od dodavatele rodinných domů Martinice Group. Kromě hrubé stavby jsou totiž velmi důležité i detaily a dodržování správných technologických postupů v průběhu výstavby. Důraz je kladen na použití kvalitních materiálů a předepsaného spojovacího materiálu na základě posouzení statika. Tímto způsobem výroby se eliminují chyby a nepřesnosti, ke kterým může dojít vlivem lidského faktoru, vzniká-li dřevostavba díl po díle přímo na staveništi. Nejste také tolik limitováni počasím, protože výroba panelů probíhá v zastřešených halách a na stavbu se dovezou, až to počasí dovolí. Rychlost výstavby je v průměru 9 až 12 měsíců, a to včetně projektové dokumentace a vyřízení ohlášení stavby nebo stavebního povolení.
Rodinný dům od Martinice Group si můžete objednat ve třech úrovních povedení: Optimal, Optimal plus a Dům na klíč. Záleží pouze na vás, jak moc se chcete na stavbě vašeho domu přičinit a zda chcete část peněz ušetřit a dokončovací práce si udělat sami. Pokud chcete stavbu bez starostí, tak si rozhodně zvolte Dům na klíč určený k nastěhování.
Novinky v nabídce Martinice Group
Přízemní rodinný dům 106
Obliba přízemních rodinných domů neboli bungalovů stále roste a jejich nabídka se proto rozšiřuje. Rodinný dům 106 je tvarově jednoduchý přízemní dům s obdélníkovým půdorysem a dispozicí 4+kk. Obytné místnosti tvoří obývací pokoj s kuchyňským koutem a 3 ložnice. Hlavní výhodou domu je zcela oddělená rodičovská část domu s vlastní koupelnou s šatnou. Dům umožňuje variantní provedení střechy – zákazník má na výběr rovnou, sedlovou nebo valbovou střechu.

Rodinný dům 106 se sedlovou střechou bez přesahů

Rodinný dům 106 s valbovou střechou

Rodinný dům 106 se sedlovou střechou s přesahy

Rodinný dům 106 - půdorys
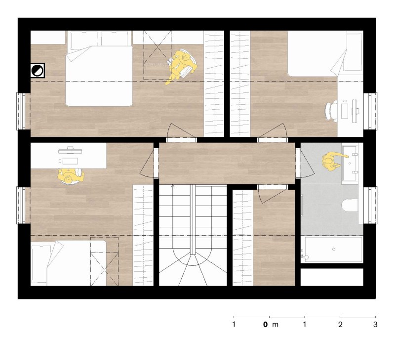
Patrový rodinný dům 203
Patrový rodinný dům 203 s dispozicí 5+kk nabízí na relativně malé zastavěné ploše dostatek prostoru pro 4-člennou rodinu včetně pracovny. V přízemí domu se nachází obývací pokoj s jídelnou a kuchyňským koutem, dále koupelna, šatna a pracovna. V první patře najdeme 3 ložnice, koupelnu a šatnu. Dům je opět dostupný v různých variantách střechy.

Rodinný dům 203 - šikmá střecha bez přesahů

Rodinný dům 203 - šikmá střecha s přesahy

Rodinný dům 203 - půdorys 1.NP

Rodinný dům 203 - půdorys přízemí
Přečtěte si také článek
Dřevostavby na klíč - bydlíte do roka a do dne
- PR článek -










