Minerva – verze 2

Parametry projektu
Cena 2 750 000 Kč
Cena domu na klíč
Cena projektu:
19 900 Kč
Typ domu:
Samostatně stojící
Konstrukce:
Montované domy
Obytných místností:
4 + kk
Nadzemních podlaží:
Bungalovy
Garáž:
Bez garáže
Zastavěná plocha:
148,16 m2
Obestavěný prostor:
634,98 m3
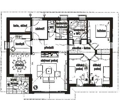
Místnosti
zádveří:
5,63 m2
předsíň:
9,54 m2
obývací pokoj:
27,01 m2
jídelna:
8,65 m2
jídelna:
8,58 m2
kuchyň:
7,41 m2
technická místnost:
4,30 m2
WC:
1,48 m2
chodba - šatna:
6,06 m2
ložnice:
13,21 m2
dětský pokoj:
11,14 m2
dětský pokoj:
11,14 m2
koupelna + WC:
7,08 m2
kola - sklad:
5,07 m2
krytá terasa:
6,79 m2
Popis projektu
Kontaktní informace




















