Chianti

Parametry projektu
Cena 4 727 530 Kč
Cena domu na klíč
Typ domu:
Samostatně stojící
Konstrukce:
Montované domy
Obytných místností:
4 + kk
Nadzemních podlaží:
Bungalovy
Garáž:
S garážovým stáním
Popis projektu
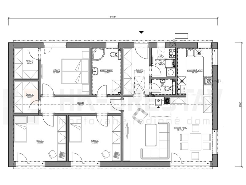
| Vnější rozměry | 15,20 m x 9,00 m |
| Dispozice | 4+kk |
| Výška hřebene střechy | 5,15 m |
| Sklon střechy | 22° |
| Přesah střechy | 0,15 m |
| Komín | betonový, třísložkový |
| Zastavěná plocha | 136,18 m² |
| Energeticky vztažná plocha | 136,18 m² |
| Celková užitná plocha | 113,90 m² |
| Půdorysná plocha střechy | 134,77 m² |
| Tepelná ztráta (s VZT) | 3,70 kW |
| Tepelná ztráta (bez VZT) | 4,20 kW |
Kontaktní informace




















