Prosecco

Parametry projektu
Cena 5 358 909 Kč
Cena domu na klíč
Typ domu:
Samostatně stojící
Konstrukce:
Montované domy
Obytných místností:
4 + kk
Nadzemních podlaží:
Bungalovy
Garáž:
S garáží
Garáž:
S garážovým stáním
Popis projektu
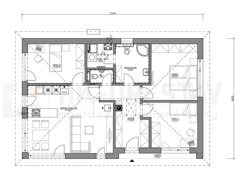
| Vnější rozměry | 14,00 m x 13,60 m |
| Dispozice | 4+kk |
| Výška hřebene střechy | 5,15 m |
| Sklon střechy | 22° |
| Přesah střechy | 0,50 m |
| Komín | betonový, třísložkový |
| Zastavěná plocha | 167,40 m² |
| Energeticky vztažná plocha | 151,40 m² |
| Celková užitná plocha | 125,92 m² |
| Půdorysná plocha střechy | 196,00 m² |
| Tepelná ztráta (s VZT) | 4,30 kW |
| Tepelná ztráta (bez VZT) | 5,00 kW |
Kontaktní informace




















