Portugal

Parametry projektu
Cena 4 248 224 Kč
Cena domu na klíč
Typ domu:
Samostatně stojící
Konstrukce:
Montované domy
Obytných místností:
4 + kk
Nadzemních podlaží:
Patrové domy
Garáž:
Bez garáže
Popis projektu
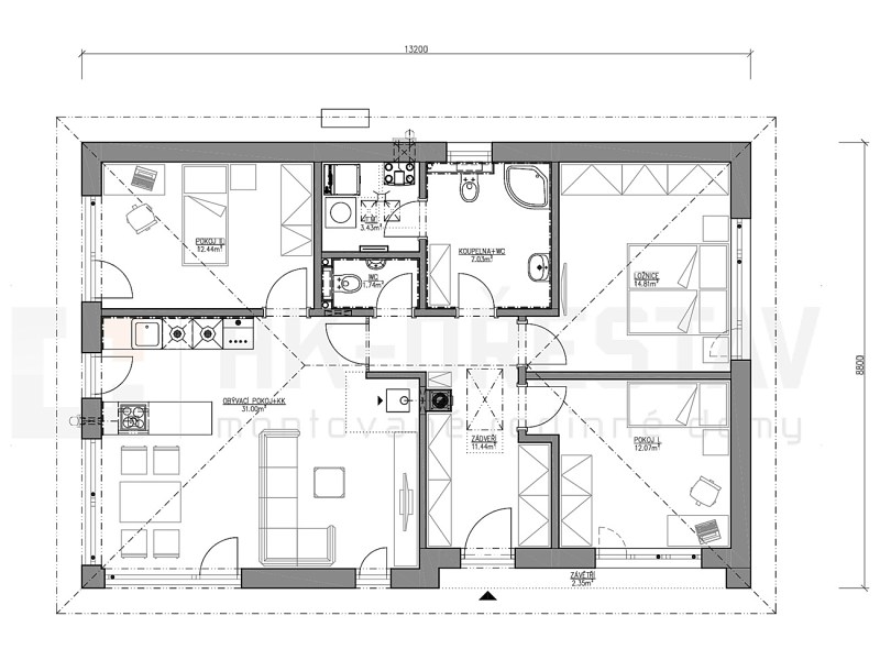
Vnější rozměry13,20 m x 8,80 mDispozice4+kkVýška hřebene střechy5,10 mSklon střechy22°Přesah střechy0,50 mKomínbetonový, třísložkovýZastavěná plocha116,16 m²Energeticky vztažná plocha113,70 m²Celková užitná plocha93,96 m²Půdorysná plocha střechy139,60 m²Tepelná ztráta (s VZT)3,10 kWTepelná ztráta (bez VZT)4,00 kW
Kontaktní informace




















